Eigenschaften:

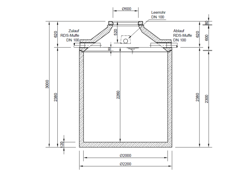
Ø Innen
2.000 mm
Ø Außen
2.200 mm
Einbautiefe
-3.000 mm
Schwerstes Teil
4.650 kg
Gesamtgewicht
5.980 kg
Abdeckung Kl. A
1,5 t

Betonzisterne 7000l ohne Zubehör

✅ Kostenlose Lieferung, deutschlandweit!
✅ Einfache Montage & inkl. Versetzen mit LKW
✅ Langlebige Qualität mit 30 Jahren Garantie

Ursprünglicher Preis war: 2.300€Aktueller Preis ist: 2.110€. inkl. MwSt

in 8-12 Werktagen bei Ihnen!

Zisternen Zubehör

  • Schachtabdeckung *

  • Kernbohrung *

  • Ausgleichsring *

Artikelpreis

Zusatzartikel

SUMME

DIREKT KAUFEN!
Mall GmbH - Donaueschingen, Nottulm, Coswig, Ettlingen
Garantiert sichere Zahlung

Experten Beratung:

08304 / 92 92 988

Beschreibung

Eine Betonzisterne ist die ideale Lösung, um Regenwasser effizient zu speichern und für Haus und Garten zu nutzen. Mit einer Betonzisterne 7.000l kannst du deinen Wasserverbrauch nachhaltig reduzieren und deine Wasserkosten langfristig senken. Dank ihrer robusten Betonbauweise (C35/45-Qualität) bietet sie maximale Stabilität und Langlebigkeit – perfekt für den Einsatz im Einfamilienhaus oder auf größeren Grundstücken.

Technische Daten der Betonzisterne 7.000l

  • Fassungsvermögen: 7.000 Liter
  • Material: Hochwertiger Beton (C35/45)
  • Durchmesser (innen/außen): 2.000 mm / 2.200 mm
  • Einbautiefe: 3.000 mm
  • Schwerstes Einzelteil: 4.650 kg
  • Gesamtgewicht: 5.980 kg

Schachtabdeckungen für deine Betonzisterne

Vorlage Goebeldecke 3D 1Göbeldeckel (Standard) | 5t
Vorlage Stabiflex 3D Kunststoffabdeckung | 5t
Vorlage Klasse B Deckel 3D 1 Abeckung Klasse B | 12,5t
Vorlage Windrose 3D  Windrose (Guss) | 12,5t

Anpassung der Höhe mit Schachtausgleichsringen

Um die Höhe der Zisterne an die Geländeoberkante anzupassen, können Schachtausgleichsringe verwendet werden. Diese Betonringe werden auf den bestehenden Schacht gesetzt und ermöglichen eine exakte Anpassung an das Bodenniveau. Je nach Bedarf können mehrere Ringe übereinander gestapelt werden, um die gewünschte Höhe zu erreichen.

Vorlage Ausgleichsring

Warum eine Betonzisterne 7.000l die beste Wahl ist

Eine Betonzisterne unterscheidet sich durch ihre extreme Haltbarkeit und ihre Fähigkeit, auch über Jahrzehnte hinweg dicht zu bleiben. Im Gegensatz zu Kunststoffzisternen ist Beton widerstandsfähiger gegenüber Erd- und Wasserdruck, wodurch Verformungen oder Beschädigungen vermieden werden. Die monolithische, also fugenlose Bauweise sorgt dafür, dass kein Wasser ungewollt entweicht oder eindringt. Das macht eine Zisterne aus Beton zur besten Wahl für langfristige Regenwassernutzung.

Vorteile der Betonzisterne 7.000l

Fugenlose, monolithische Bauweise – absolut dicht und extrem stabil, verhindert Risse und Undichtigkeiten.
Robuster Schachtdeckel – Belastbar bis 1,5 t Radlast (Kl. A), ideal für private Grundstücke und befahrbare Flächen.
Perfekte Anschlüsse – Mit Zu- und Ablauf (DN100) sowie einer zusätzlichen Öffnung für die Versorgungsleitung, einfach zu integrieren.
Vielseitig nutzbar – Optimal für Gartenbewässerung, Toilettenspülung und die Nutzung in der Waschmaschine – schont Umwelt und Geldbeutel.
Dauerhaft nachhaltig – Nutze Regenwasser clever und reduziere deinen Trinkwasserverbrauch um bis zu 50 %.
Langlebigkeit mit 30 Jahren Garantie – Hochwertiger C35/45-Beton sichert jahrzehntelange Nutzung ohne Materialermüdung.
Inkl. Versetzen – Die Zisterne wird professionell geliefert und direkt in die vorbereitete Baugrube gesetzt.
Kostenlose Lieferung – Bequeme Anlieferung bis zur Baustelle ohne Zusatzkosten.

Wofür kannst du die Zisterne nutzen?

Eine Betonzisterne ist äußerst flexibel einsetzbar und kann für verschiedene Zwecke genutzt werden:

  • Gartenbewässerung: Mit einer entsprechenden Pumpe kannst du dein gesamtes Grundstück mit gesammeltem Regenwasser bewässern.
  • Haushaltsnutzung: Durch eine Hauswasserwerk kannst du das Wasser für die Toilettenspülung oder die Waschmaschine verwenden und damit Trinkwasserkosten sparen.
  • Notwasserversorgung: In trockenen Perioden hast du immer eine zusätzliche Wasserreserve zur Verfügung.
  • Grundwasserentlastung: Du hilfst aktiv mit, Überlastungen der Kanalisation bei Starkregen zu vermeiden.

Warum eine Zisterne aus Beton statt Kunststoff?

Viele Bauherren stehen vor der Wahl zwischen einer Betonzisterne und einer Kunststoffzisterne. Hier sind einige Gründe, warum eine Zisterne aus Beton die bessere Wahl ist:

Stabilität: Beton ist extrem robust und widerstandsfähig gegen Erdbewegungen, Wurzelwachstum und mechanische Belastung. Kunststoffzisternen können sich bei Druck verformen oder sogar an die Oberfläche gedrückt werden, wenn der Grundwasserspiegel steigt.
Natürliche Kühlung: Beton hält das Wasser konstant kühl, wodurch die Bildung von Algen und Keimen reduziert wird.
Kein zusätzliches Ballastmaterial nötig: Kunststoffzisternen müssen oft mit zusätzlichem Ballast gesichert werden, damit sie nicht „aufsteigen“. Bei einer Betonzisterne ist das durch das hohe Eigengewicht nicht nötig.
Wartungsarm: Eine Zisterne aus Beton benötigt deutlich weniger Pflege und Wartung als Kunststoffmodelle.

Einbau & Lieferung – So einfach geht’s

Eine Zisterne aus Beton erfordert eine fachgerechte Installation. Doch keine Sorge – die Lieferung und das Versetzen der Zisterne sind bereits inklusive! Das bedeutet, dass du dich nicht um das Heben und Positionieren kümmern musst. Du brauchst lediglich eine vorbereitete Baugrube, die den Maßen der Zisterne entspricht.

Schritt-für-Schritt zum Einbau deiner Betonzisterne:

1️⃣ Baugrube ausheben – Die Grube sollte etwas größer als die Zisterne sein, um den Einbau zu erleichtern.
2️⃣ Zisterne wird geliefert & versetzt – Die kostenlose Lieferung bringt deine Zisterne aus Beton direkt zur Baustelle, wo sie mit einem Kran in die vorbereitete Grube gesetzt wird.
3️⃣ Anschlüsse verbinden – Die vorhandenen Zu- und Abläufe ermöglichen eine einfache Integration in dein Regenwassersystem.
4️⃣ Verfüllung & Inbetriebnahme – Sobald die Zisterne sicher sitzt, wird der Bereich mit geeignetem Material verfüllt, und du kannst dein Regenwasser nutzen!

Jetzt deine Betonzisterne 7.000l sichern!

Eine Betonzisterne ist eine Investition in eine nachhaltige und ressourcenschonende Wasserversorgung. Mit 25 Jahren Garantie, kostenfreier Lieferung und professionellem Versetzen bietet die Betonzisterne 7.000l höchste Qualität und langfristigen Nutzen.

👉 Bestelle jetzt deine Zisterne aus Beton und nutze Regenwasser clever und effizient!

Ø Innen
2.000 mm
Ø Außen
2.200 mm
Einbautiefe
-3.000 mm
Schwerstes Teil
4.650 kg
Gesamtgewicht
5.980 kg
Abdeckung Kl. A
1,5 t

Eine Betonzisterne ist die ideale Lösung, um Regenwasser effizient zu speichern und für Haus und Garten zu nutzen. Mit einer Betonzisterne 7.000l kannst du deinen Wasserverbrauch nachhaltig reduzieren und deine Wasserkosten langfristig senken. Dank ihrer robusten Betonbauweise (C35/45-Qualität) bietet sie maximale Stabilität und Langlebigkeit – perfekt für den Einsatz im Einfamilienhaus oder auf größeren Grundstücken.

Technische Daten der Betonzisterne 7.000l

  • Fassungsvermögen: 7.000 Liter
  • Material: Hochwertiger Beton (C35/45)
  • Durchmesser (innen/außen): 2.000 mm / 2.200 mm
  • Einbautiefe: 3.000 mm
  • Schwerstes Einzelteil: 4.650 kg
  • Gesamtgewicht: 5.980 kg

Schachtabdeckungen für deine Betonzisterne

Vorlage Goebeldecke 3D 1Göbeldeckel (Standard) | 5t
Vorlage Stabiflex 3D Kunststoffabdeckung | 5t
Vorlage Klasse B Deckel 3D 1 Abeckung Klasse B | 12,5t
Vorlage Windrose 3D  Windrose (Guss) | 12,5t

Anpassung der Höhe mit Schachtausgleichsringen

Um die Höhe der Zisterne an die Geländeoberkante anzupassen, können Schachtausgleichsringe verwendet werden. Diese Betonringe werden auf den bestehenden Schacht gesetzt und ermöglichen eine exakte Anpassung an das Bodenniveau. Je nach Bedarf können mehrere Ringe übereinander gestapelt werden, um die gewünschte Höhe zu erreichen.

Vorlage Ausgleichsring

Warum eine Betonzisterne 7.000l die beste Wahl ist

Eine Betonzisterne unterscheidet sich durch ihre extreme Haltbarkeit und ihre Fähigkeit, auch über Jahrzehnte hinweg dicht zu bleiben. Im Gegensatz zu Kunststoffzisternen ist Beton widerstandsfähiger gegenüber Erd- und Wasserdruck, wodurch Verformungen oder Beschädigungen vermieden werden. Die monolithische, also fugenlose Bauweise sorgt dafür, dass kein Wasser ungewollt entweicht oder eindringt. Das macht eine Zisterne aus Beton zur besten Wahl für langfristige Regenwassernutzung.

Vorteile der Betonzisterne 7.000l

Fugenlose, monolithische Bauweise – absolut dicht und extrem stabil, verhindert Risse und Undichtigkeiten.
Robuster Schachtdeckel – Belastbar bis 1,5 t Radlast (Kl. A), ideal für private Grundstücke und befahrbare Flächen.
Perfekte Anschlüsse – Mit Zu- und Ablauf (DN100) sowie einer zusätzlichen Öffnung für die Versorgungsleitung, einfach zu integrieren.
Vielseitig nutzbar – Optimal für Gartenbewässerung, Toilettenspülung und die Nutzung in der Waschmaschine – schont Umwelt und Geldbeutel.
Dauerhaft nachhaltig – Nutze Regenwasser clever und reduziere deinen Trinkwasserverbrauch um bis zu 50 %.
Langlebigkeit mit 30 Jahren Garantie – Hochwertiger C35/45-Beton sichert jahrzehntelange Nutzung ohne Materialermüdung.
Inkl. Versetzen – Die Zisterne wird professionell geliefert und direkt in die vorbereitete Baugrube gesetzt.
Kostenlose Lieferung – Bequeme Anlieferung bis zur Baustelle ohne Zusatzkosten.

Wofür kannst du die Zisterne nutzen?

Eine Betonzisterne ist äußerst flexibel einsetzbar und kann für verschiedene Zwecke genutzt werden:

  • Gartenbewässerung: Mit einer entsprechenden Pumpe kannst du dein gesamtes Grundstück mit gesammeltem Regenwasser bewässern.
  • Haushaltsnutzung: Durch eine Hauswasserwerk kannst du das Wasser für die Toilettenspülung oder die Waschmaschine verwenden und damit Trinkwasserkosten sparen.
  • Notwasserversorgung: In trockenen Perioden hast du immer eine zusätzliche Wasserreserve zur Verfügung.
  • Grundwasserentlastung: Du hilfst aktiv mit, Überlastungen der Kanalisation bei Starkregen zu vermeiden.

Warum eine Zisterne aus Beton statt Kunststoff?

Viele Bauherren stehen vor der Wahl zwischen einer Betonzisterne und einer Kunststoffzisterne. Hier sind einige Gründe, warum eine Zisterne aus Beton die bessere Wahl ist:

Stabilität: Beton ist extrem robust und widerstandsfähig gegen Erdbewegungen, Wurzelwachstum und mechanische Belastung. Kunststoffzisternen können sich bei Druck verformen oder sogar an die Oberfläche gedrückt werden, wenn der Grundwasserspiegel steigt.
Natürliche Kühlung: Beton hält das Wasser konstant kühl, wodurch die Bildung von Algen und Keimen reduziert wird.
Kein zusätzliches Ballastmaterial nötig: Kunststoffzisternen müssen oft mit zusätzlichem Ballast gesichert werden, damit sie nicht „aufsteigen“. Bei einer Betonzisterne ist das durch das hohe Eigengewicht nicht nötig.
Wartungsarm: Eine Zisterne aus Beton benötigt deutlich weniger Pflege und Wartung als Kunststoffmodelle.

Einbau & Lieferung – So einfach geht’s

Eine Zisterne aus Beton erfordert eine fachgerechte Installation. Doch keine Sorge – die Lieferung und das Versetzen der Zisterne sind bereits inklusive! Das bedeutet, dass du dich nicht um das Heben und Positionieren kümmern musst. Du brauchst lediglich eine vorbereitete Baugrube, die den Maßen der Zisterne entspricht.

Schritt-für-Schritt zum Einbau deiner Betonzisterne:

1️⃣ Baugrube ausheben – Die Grube sollte etwas größer als die Zisterne sein, um den Einbau zu erleichtern.
2️⃣ Zisterne wird geliefert & versetzt – Die kostenlose Lieferung bringt deine Zisterne aus Beton direkt zur Baustelle, wo sie mit einem Kran in die vorbereitete Grube gesetzt wird.
3️⃣ Anschlüsse verbinden – Die vorhandenen Zu- und Abläufe ermöglichen eine einfache Integration in dein Regenwassersystem.
4️⃣ Verfüllung & Inbetriebnahme – Sobald die Zisterne sicher sitzt, wird der Bereich mit geeignetem Material verfüllt, und du kannst dein Regenwasser nutzen!

Jetzt deine Betonzisterne 7.000l sichern!

Eine Betonzisterne ist eine Investition in eine nachhaltige und ressourcenschonende Wasserversorgung. Mit 25 Jahren Garantie, kostenfreier Lieferung und professionellem Versetzen bietet die Betonzisterne 7.000l höchste Qualität und langfristigen Nutzen.

👉 Bestelle jetzt deine Zisterne aus Beton und nutze Regenwasser clever und effizient!

Beschreibung

Eine Betonzisterne ist die ideale Lösung, um Regenwasser effizient zu speichern und für Haus und Garten zu nutzen. Mit einer Betonzisterne 7.000l kannst du deinen Wasserverbrauch nachhaltig reduzieren und deine Wasserkosten langfristig senken. Dank ihrer robusten Betonbauweise (C35/45-Qualität) bietet sie maximale Stabilität und Langlebigkeit – perfekt für den Einsatz im Einfamilienhaus oder auf größeren Grundstücken.

Technische Daten der Betonzisterne 7.000l

  • Fassungsvermögen: 7.000 Liter
  • Material: Hochwertiger Beton (C35/45)
  • Durchmesser (innen/außen): 2.000 mm / 2.200 mm
  • Einbautiefe: 3.000 mm
  • Schwerstes Einzelteil: 4.650 kg
  • Gesamtgewicht: 5.980 kg

Schachtabdeckungen für deine Betonzisterne

Vorlage Goebeldecke 3D 1Göbeldeckel (Standard) | 5t
Vorlage Stabiflex 3D Kunststoffabdeckung | 5t
Vorlage Klasse B Deckel 3D 1 Abeckung Klasse B | 12,5t
Vorlage Windrose 3D  Windrose (Guss) | 12,5t

Anpassung der Höhe mit Schachtausgleichsringen

Um die Höhe der Zisterne an die Geländeoberkante anzupassen, können Schachtausgleichsringe verwendet werden. Diese Betonringe werden auf den bestehenden Schacht gesetzt und ermöglichen eine exakte Anpassung an das Bodenniveau. Je nach Bedarf können mehrere Ringe übereinander gestapelt werden, um die gewünschte Höhe zu erreichen.

Vorlage Ausgleichsring

Warum eine Betonzisterne 7.000l die beste Wahl ist

Eine Betonzisterne unterscheidet sich durch ihre extreme Haltbarkeit und ihre Fähigkeit, auch über Jahrzehnte hinweg dicht zu bleiben. Im Gegensatz zu Kunststoffzisternen ist Beton widerstandsfähiger gegenüber Erd- und Wasserdruck, wodurch Verformungen oder Beschädigungen vermieden werden. Die monolithische, also fugenlose Bauweise sorgt dafür, dass kein Wasser ungewollt entweicht oder eindringt. Das macht eine Zisterne aus Beton zur besten Wahl für langfristige Regenwassernutzung.

Vorteile der Betonzisterne 7.000l

Fugenlose, monolithische Bauweise – absolut dicht und extrem stabil, verhindert Risse und Undichtigkeiten.
Robuster Schachtdeckel – Belastbar bis 1,5 t Radlast (Kl. A), ideal für private Grundstücke und befahrbare Flächen.
Perfekte Anschlüsse – Mit Zu- und Ablauf (DN100) sowie einer zusätzlichen Öffnung für die Versorgungsleitung, einfach zu integrieren.
Vielseitig nutzbar – Optimal für Gartenbewässerung, Toilettenspülung und die Nutzung in der Waschmaschine – schont Umwelt und Geldbeutel.
Dauerhaft nachhaltig – Nutze Regenwasser clever und reduziere deinen Trinkwasserverbrauch um bis zu 50 %.
Langlebigkeit mit 30 Jahren Garantie – Hochwertiger C35/45-Beton sichert jahrzehntelange Nutzung ohne Materialermüdung.
Inkl. Versetzen – Die Zisterne wird professionell geliefert und direkt in die vorbereitete Baugrube gesetzt.
Kostenlose Lieferung – Bequeme Anlieferung bis zur Baustelle ohne Zusatzkosten.

Wofür kannst du die Zisterne nutzen?

Eine Betonzisterne ist äußerst flexibel einsetzbar und kann für verschiedene Zwecke genutzt werden:

  • Gartenbewässerung: Mit einer entsprechenden Pumpe kannst du dein gesamtes Grundstück mit gesammeltem Regenwasser bewässern.
  • Haushaltsnutzung: Durch eine Hauswasserwerk kannst du das Wasser für die Toilettenspülung oder die Waschmaschine verwenden und damit Trinkwasserkosten sparen.
  • Notwasserversorgung: In trockenen Perioden hast du immer eine zusätzliche Wasserreserve zur Verfügung.
  • Grundwasserentlastung: Du hilfst aktiv mit, Überlastungen der Kanalisation bei Starkregen zu vermeiden.

Warum eine Zisterne aus Beton statt Kunststoff?

Viele Bauherren stehen vor der Wahl zwischen einer Betonzisterne und einer Kunststoffzisterne. Hier sind einige Gründe, warum eine Zisterne aus Beton die bessere Wahl ist:

Stabilität: Beton ist extrem robust und widerstandsfähig gegen Erdbewegungen, Wurzelwachstum und mechanische Belastung. Kunststoffzisternen können sich bei Druck verformen oder sogar an die Oberfläche gedrückt werden, wenn der Grundwasserspiegel steigt.
Natürliche Kühlung: Beton hält das Wasser konstant kühl, wodurch die Bildung von Algen und Keimen reduziert wird.
Kein zusätzliches Ballastmaterial nötig: Kunststoffzisternen müssen oft mit zusätzlichem Ballast gesichert werden, damit sie nicht „aufsteigen“. Bei einer Betonzisterne ist das durch das hohe Eigengewicht nicht nötig.
Wartungsarm: Eine Zisterne aus Beton benötigt deutlich weniger Pflege und Wartung als Kunststoffmodelle.

Einbau & Lieferung – So einfach geht’s

Eine Zisterne aus Beton erfordert eine fachgerechte Installation. Doch keine Sorge – die Lieferung und das Versetzen der Zisterne sind bereits inklusive! Das bedeutet, dass du dich nicht um das Heben und Positionieren kümmern musst. Du brauchst lediglich eine vorbereitete Baugrube, die den Maßen der Zisterne entspricht.

Schritt-für-Schritt zum Einbau deiner Betonzisterne:

1️⃣ Baugrube ausheben – Die Grube sollte etwas größer als die Zisterne sein, um den Einbau zu erleichtern.
2️⃣ Zisterne wird geliefert & versetzt – Die kostenlose Lieferung bringt deine Zisterne aus Beton direkt zur Baustelle, wo sie mit einem Kran in die vorbereitete Grube gesetzt wird.
3️⃣ Anschlüsse verbinden – Die vorhandenen Zu- und Abläufe ermöglichen eine einfache Integration in dein Regenwassersystem.
4️⃣ Verfüllung & Inbetriebnahme – Sobald die Zisterne sicher sitzt, wird der Bereich mit geeignetem Material verfüllt, und du kannst dein Regenwasser nutzen!

Jetzt deine Betonzisterne 7.000l sichern!

Eine Betonzisterne ist eine Investition in eine nachhaltige und ressourcenschonende Wasserversorgung. Mit 25 Jahren Garantie, kostenfreier Lieferung und professionellem Versetzen bietet die Betonzisterne 7.000l höchste Qualität und langfristigen Nutzen.

👉 Bestelle jetzt deine Zisterne aus Beton und nutze Regenwasser clever und effizient!

Erklärvideos rund um deine Zisterne

Vermeide typische Fehler und triff von Anfang an die richtigen Entscheidungen.

Bild von unserem Zisternen Experten Christian Hein

Christian Hein, Geschäftsführer

Menschen kaufen bei Menschen!

Weil Vertrauen der beste Berater ist.

Deshalb erreichst du mich direkt für deine Fragen oder eine individuelle Beratung:

Echte Stimmen. Echte Erfahrungen. Echte Entscheidungen

Toni Wiemann
Toni Wiemann
2024-05-28
Die 5 Sterne sind fast zu wenig - man würde mehr verteilen wenn es möglich wäre. Vom ersten Kontakt und Angebotserstellung bis zur Vorbereitung und Ablauf der Lieferung, alles hat gepasst. Dazu unschlagbare Preis-Leistung und unkomplizierte Kommunikation - perfekt!
Ludwig Lämmerhofer
Ludwig Lämmerhofer
2024-04-09
Hat alles super geklappt.
Christopher G-king
Christopher G-king
2024-03-21
Kontakt war super. Fragen wurden schnell beantwortet, Lieferung war auch sehr und unkompliziert vom Fahrer umgesetzt. Kann ich nur empfehlen.
Hausner Tobias
Hausner Tobias
2024-03-19
Wir sind zu 100% zufrieden. Super Service und fairer Preis.
Maximilian Meier
Maximilian Meier
2024-03-18
Super schnelle Bearbeitung der Bestellung und sofortige Lieferung. Die beauftrage Spedition war pünktlich und hat das Setzten der Zisterne ohne Probleme durchgeführt. Ich war super zufrieden und würde sofort wieder auf www.wasserzisterne.de bestellen.
Scir occo
Scir occo
2024-03-17
Wir haben unsere Zisterne letzten Sommer erhalten. Trotz mehrerer Terminänderungen unsererseits war das Team um Herrn Hein sehr zuvorkommend. Vielen Dank.
Matthias Miethke
Matthias Miethke
2024-03-12
Kontakt mit Händler, Terminierung, Lieferung, Fahrer inkl. Setzen der Zisterne kompetent und einwandfrei! Absolut empfehlenswert!
Tobias Müller
Tobias Müller
2024-03-10
Super Beratung per Telefon, Absprache und Lieferung.
Merima Hamzic
Merima Hamzic
2024-03-05
Wir sind begeistert! Von der Betreuung bis zur Lieferung alles einwandfrei verlaufen. Besser hätte es nicht laufen können. Definitiv weiterzuempfehlen!!! Danke euch!

Können sich unsere Kunden irren?

Bild von unserem Zisternen Experten Christian Hein

Christian Hein, Geschäftsführer

Menschen kaufen bei Menschen!

Weil Vertrauen der beste Berater ist.

Deshalb erreichst du mich direkt für deine Fragen oder eine individuelle Beratung:

Deine Investition, meine Aufgabe!

Bild von unserem Zisternen Experten Christian Hein
Christian Hein - Eigentümer

Seit 20 Jahren entwickle ich praxiserprobte Lösugen und gebe daher auch eine klare Handlungsempfehlug. Lass uns gemeinsam die beste Lösung für dich finden!

Du plansteineZisterne, aberfragst dich, wie der Einbaufunktioniert? In nur 90 Sekundenzeigenwirdir Schritt für Schritt, wie die Zisternesicher und effizienteingebautwird – von der Baugrube bis zum Anschluss. So bist du bestensvorbereitet!

Du willst Regenwasser nutzen, aber weißt nicht, welche Zisternengröße die richtige für dich ist? In diesem Video erfährst du, worauf es ankommt – von der Dachfläche bis zum Wasserverbrauch. So vermeidest du teure Fehlkäufe und findest die perfekte Lösung für dein Zuhause!

Regenwasser im Garten nutzen – aber wie? In diesem Video bekommst du eine klare Handlungsempfehlung zur perfekten Lösung: Welcher Filter ist der richtige? Welche Pumpe brauchst du? Welche Wasserzapfsäule ist sinnvoll? Zudem zeigen wir dir den kompletten Einbau Schritt für Schritt.

Wie kannst du über 50 % Trinkwasser sparen? In unserem Video zeigen wir dir, welche Komponenten du brauchst, wie du Regenwasser für Toilette, Waschmaschine und Garten nutzt und worauf du bei der Umsetzung achten musst.