Sale
Eigenschaften:
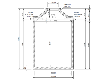
Ø Innen
2.000 mm
Ø Außen
2.200 mm
Einbautiefe
-3.300 mm
Schwerstes Teil
5.130 kg
Gesamtgewicht
6.460 kg
Abdeckung Kl. A
1,5 t
✅ Kostenlose Lieferung, deutschlandweit!
✅ Einfache Montage & inkl. Versetzen mit LKW
✅ Langlebige Qualität mit 30 Jahren Garantie
2.350€ Ursprünglicher Preis war: 2.350€2.215€Aktueller Preis ist: 2.215€. inkl. MwSt
Experten Beratung:
Eine Betonzisterne für die Gartennutzung mit integriertem Filtersystem ist die ideale Lösung, wenn du Regenwasser sauber speichern und direkt im Garten nutzen willst. Mit der 8000l Betonzisterne für Garten inklusive Korbfilter und Siphon hältst du Schmutz zuverlässig fern und verhinderst Gerüche ganz automatisch, weil das System intelligent aufgebaut ist. Dank robuster Betonbauweise bekommst du maximale Stabilität und eine langlebige Lösung, die dich viele Jahre begleitet. Perfekt für dein Einfamilienhaus, wenn du nachhaltig bewässern und gleichzeitig Wasserkosten sparen willst.
Göbeldeckel (Standard) | 5t
Kunststoffabdeckung | 5t
Abeckung Klasse B | 12,5t
Windrose (Guss) | 12,5tUm die Höhe der Zisterne an die Geländeoberkante anzupassen, können Schachtausgleichsringe verwendet werden. Diese Betonringe werden auf den bestehenden Schacht gesetzt und ermöglichen eine exakte Anpassung an das Bodenniveau. Je nach Bedarf können mehrere Ringe übereinander gestapelt werden, um die gewünschte Höhe zu erreichen.

Der Korbfilter hält Blätter und Schmutz zuverlässig zurück, während der Siphon Gerüche verhindert und feine Partikel gezielt abführt. Für dich bedeutet das weniger Aufwand und dauerhaft sauberes Wasser. Beide Komponenten sind bereits ab Werk fest verbaut sodass du eine sofort einsatzbereite und durchdachte Lösung für deinen Garten bekommst.
Eine Betonzisterne unterscheidet sich durch ihre extreme Haltbarkeit und ihre Fähigkeit, auch über Jahrzehnte hinweg dicht zu bleiben. Im Gegensatz zu Kunststoffzisternen ist Beton widerstandsfähiger gegenüber Erd- und Wasserdruck, wodurch Verformungen oder Beschädigungen vermieden werden. Die monolithische, also fugenlose Bauweise sorgt dafür, dass kein Wasser ungewollt entweicht oder eindringt. Das macht eine Zisterne aus Beton zur besten Wahl für langfristige Regenwassernutzung.
✅ Fugenlose, monolithische Bauweise – absolut dicht und extrem stabil, weil keine Schwachstellen entstehen.
✅ Robuster Schachtdeckel – belastbar bis 1,5 t, ideal wenn du deinen Garten auch befahren möchtest.
✅ Perfekte Anschlüsse – Zu und Ablauf sowie Anschluss für deine Gartenleitung, schnell und einfach installiert.
✅ Optimal für die Gartenbewässerung – Versorge Rasen, Beete und Pflanzen zuverlässig mit kostenlosem Regenwasser.
✅ Spart bares Geld – reduziere deinen Trinkwasserverbrauch deutlich, weil du deinen Garten nachhaltig bewässerst.
✅ Langlebig mit 30 Jahren Garantie – hochwertiger C35/45 Beton sorgt für maximale Sicherheit über Jahrzehnte.
✅ Inkl. Versetzen – wird direkt in deine Baugrube eingesetzt, du hast keinen Aufwand.
✅ Kostenlose Lieferung – bequem bis zu dir auf die Baustelle.
Eine Betonzisterne ist äußerst flexibel einsetzbar und kann für verschiedene Zwecke genutzt werden:
Viele Bauherren stehen vor der Wahl zwischen einer Betonzisterne und einer Kunststoffzisterne. Hier sind einige Gründe, warum eine Zisterne aus Beton die bessere Wahl ist:
✔ Stabilität: Beton ist extrem robust und widerstandsfähig gegen Erdbewegungen, Wurzelwachstum und mechanische Belastung. Kunststoffzisternen können sich bei Druck verformen oder sogar an die Oberfläche gedrückt werden, wenn der Grundwasserspiegel steigt.
✔ Natürliche Kühlung: Beton hält das Wasser konstant kühl, wodurch die Bildung von Algen und Keimen reduziert wird.
✔ Kein zusätzliches Ballastmaterial nötig: Kunststoffzisternen müssen oft mit zusätzlichem Ballast gesichert werden, damit sie nicht „aufsteigen“. Bei einer Betonzisterne ist das durch das hohe Eigengewicht nicht nötig.
✔ Wartungsarm: Eine Zisterne aus Beton benötigt deutlich weniger Pflege und Wartung als Kunststoffmodelle.
Eine Zisterne aus Beton erfordert eine fachgerechte Installation. Doch keine Sorge – die Lieferung und das Versetzen der Zisterne sind bereits inklusive! Das bedeutet, dass du dich nicht um das Heben und Positionieren kümmern musst. Du brauchst lediglich eine vorbereitete Baugrube, die den Maßen der Zisterne entspricht.
1️⃣ Baugrube ausheben – Die Grube sollte etwas größer als die Zisterne sein, um den Einbau zu erleichtern.
2️⃣ Zisterne wird geliefert & versetzt – Die kostenlose Lieferung bringt deine Zisterne aus Beton direkt zur Baustelle, wo sie mit einem Kran in die vorbereitete Grube gesetzt wird.
3️⃣ Anschlüsse verbinden – Die vorhandenen Zu- und Abläufe ermöglichen eine einfache Integration in dein Regenwassersystem.
4️⃣ Verfüllung & Inbetriebnahme – Sobald die Zisterne sicher sitzt, wird der Bereich mit geeignetem Material verfüllt, und du kannst dein Regenwasser nutzen!
Eine Betonzisterne ist eine Investition in eine nachhaltige und ressourcenschonende Wasserversorgung. Mit 30 Jahren Garantie, kostenfreier Lieferung und professionellem Versetzen bietet die Betonzisterne 8.000l höchste Qualität und langfristigen Nutzen.
👉 Bestelle jetzt deine Zisterne aus Beton und nutze Regenwasser clever und effizient!
Eine Betonzisterne für die Gartennutzung mit integriertem Filtersystem ist die ideale Lösung, wenn du Regenwasser sauber speichern und direkt im Garten nutzen willst. Mit der 8000l Betonzisterne für Garten inklusive Korbfilter und Siphon hältst du Schmutz zuverlässig fern und verhinderst Gerüche ganz automatisch, weil das System intelligent aufgebaut ist. Dank robuster Betonbauweise bekommst du maximale Stabilität und eine langlebige Lösung, die dich viele Jahre begleitet. Perfekt für dein Einfamilienhaus, wenn du nachhaltig bewässern und gleichzeitig Wasserkosten sparen willst.
Göbeldeckel (Standard) | 5t
Kunststoffabdeckung | 5t
Abeckung Klasse B | 12,5t
Windrose (Guss) | 12,5tUm die Höhe der Zisterne an die Geländeoberkante anzupassen, können Schachtausgleichsringe verwendet werden. Diese Betonringe werden auf den bestehenden Schacht gesetzt und ermöglichen eine exakte Anpassung an das Bodenniveau. Je nach Bedarf können mehrere Ringe übereinander gestapelt werden, um die gewünschte Höhe zu erreichen.

Der Korbfilter hält Blätter und Schmutz zuverlässig zurück, während der Siphon Gerüche verhindert und feine Partikel gezielt abführt. Für dich bedeutet das weniger Aufwand und dauerhaft sauberes Wasser. Beide Komponenten sind bereits ab Werk fest verbaut sodass du eine sofort einsatzbereite und durchdachte Lösung für deinen Garten bekommst.
Eine Betonzisterne unterscheidet sich durch ihre extreme Haltbarkeit und ihre Fähigkeit, auch über Jahrzehnte hinweg dicht zu bleiben. Im Gegensatz zu Kunststoffzisternen ist Beton widerstandsfähiger gegenüber Erd- und Wasserdruck, wodurch Verformungen oder Beschädigungen vermieden werden. Die monolithische, also fugenlose Bauweise sorgt dafür, dass kein Wasser ungewollt entweicht oder eindringt. Das macht eine Zisterne aus Beton zur besten Wahl für langfristige Regenwassernutzung.
✅ Fugenlose, monolithische Bauweise – absolut dicht und extrem stabil, weil keine Schwachstellen entstehen.
✅ Robuster Schachtdeckel – belastbar bis 1,5 t, ideal wenn du deinen Garten auch befahren möchtest.
✅ Perfekte Anschlüsse – Zu und Ablauf sowie Anschluss für deine Gartenleitung, schnell und einfach installiert.
✅ Optimal für die Gartenbewässerung – Versorge Rasen, Beete und Pflanzen zuverlässig mit kostenlosem Regenwasser.
✅ Spart bares Geld – reduziere deinen Trinkwasserverbrauch deutlich, weil du deinen Garten nachhaltig bewässerst.
✅ Langlebig mit 30 Jahren Garantie – hochwertiger C35/45 Beton sorgt für maximale Sicherheit über Jahrzehnte.
✅ Inkl. Versetzen – wird direkt in deine Baugrube eingesetzt, du hast keinen Aufwand.
✅ Kostenlose Lieferung – bequem bis zu dir auf die Baustelle.
Eine Betonzisterne ist äußerst flexibel einsetzbar und kann für verschiedene Zwecke genutzt werden:
Viele Bauherren stehen vor der Wahl zwischen einer Betonzisterne und einer Kunststoffzisterne. Hier sind einige Gründe, warum eine Zisterne aus Beton die bessere Wahl ist:
✔ Stabilität: Beton ist extrem robust und widerstandsfähig gegen Erdbewegungen, Wurzelwachstum und mechanische Belastung. Kunststoffzisternen können sich bei Druck verformen oder sogar an die Oberfläche gedrückt werden, wenn der Grundwasserspiegel steigt.
✔ Natürliche Kühlung: Beton hält das Wasser konstant kühl, wodurch die Bildung von Algen und Keimen reduziert wird.
✔ Kein zusätzliches Ballastmaterial nötig: Kunststoffzisternen müssen oft mit zusätzlichem Ballast gesichert werden, damit sie nicht „aufsteigen“. Bei einer Betonzisterne ist das durch das hohe Eigengewicht nicht nötig.
✔ Wartungsarm: Eine Zisterne aus Beton benötigt deutlich weniger Pflege und Wartung als Kunststoffmodelle.
Eine Zisterne aus Beton erfordert eine fachgerechte Installation. Doch keine Sorge – die Lieferung und das Versetzen der Zisterne sind bereits inklusive! Das bedeutet, dass du dich nicht um das Heben und Positionieren kümmern musst. Du brauchst lediglich eine vorbereitete Baugrube, die den Maßen der Zisterne entspricht.
1️⃣ Baugrube ausheben – Die Grube sollte etwas größer als die Zisterne sein, um den Einbau zu erleichtern.
2️⃣ Zisterne wird geliefert & versetzt – Die kostenlose Lieferung bringt deine Zisterne aus Beton direkt zur Baustelle, wo sie mit einem Kran in die vorbereitete Grube gesetzt wird.
3️⃣ Anschlüsse verbinden – Die vorhandenen Zu- und Abläufe ermöglichen eine einfache Integration in dein Regenwassersystem.
4️⃣ Verfüllung & Inbetriebnahme – Sobald die Zisterne sicher sitzt, wird der Bereich mit geeignetem Material verfüllt, und du kannst dein Regenwasser nutzen!
Eine Betonzisterne ist eine Investition in eine nachhaltige und ressourcenschonende Wasserversorgung. Mit 30 Jahren Garantie, kostenfreier Lieferung und professionellem Versetzen bietet die Betonzisterne 8.000l höchste Qualität und langfristigen Nutzen.
👉 Bestelle jetzt deine Zisterne aus Beton und nutze Regenwasser clever und effizient!
Eine Betonzisterne für die Gartennutzung mit integriertem Filtersystem ist die ideale Lösung, wenn du Regenwasser sauber speichern und direkt im Garten nutzen willst. Mit der 8000l Betonzisterne für Garten inklusive Korbfilter und Siphon hältst du Schmutz zuverlässig fern und verhinderst Gerüche ganz automatisch, weil das System intelligent aufgebaut ist. Dank robuster Betonbauweise bekommst du maximale Stabilität und eine langlebige Lösung, die dich viele Jahre begleitet. Perfekt für dein Einfamilienhaus, wenn du nachhaltig bewässern und gleichzeitig Wasserkosten sparen willst.
Göbeldeckel (Standard) | 5t
Kunststoffabdeckung | 5t
Abeckung Klasse B | 12,5t
Windrose (Guss) | 12,5tUm die Höhe der Zisterne an die Geländeoberkante anzupassen, können Schachtausgleichsringe verwendet werden. Diese Betonringe werden auf den bestehenden Schacht gesetzt und ermöglichen eine exakte Anpassung an das Bodenniveau. Je nach Bedarf können mehrere Ringe übereinander gestapelt werden, um die gewünschte Höhe zu erreichen.

Der Korbfilter hält Blätter und Schmutz zuverlässig zurück, während der Siphon Gerüche verhindert und feine Partikel gezielt abführt. Für dich bedeutet das weniger Aufwand und dauerhaft sauberes Wasser. Beide Komponenten sind bereits ab Werk fest verbaut sodass du eine sofort einsatzbereite und durchdachte Lösung für deinen Garten bekommst.
Eine Betonzisterne unterscheidet sich durch ihre extreme Haltbarkeit und ihre Fähigkeit, auch über Jahrzehnte hinweg dicht zu bleiben. Im Gegensatz zu Kunststoffzisternen ist Beton widerstandsfähiger gegenüber Erd- und Wasserdruck, wodurch Verformungen oder Beschädigungen vermieden werden. Die monolithische, also fugenlose Bauweise sorgt dafür, dass kein Wasser ungewollt entweicht oder eindringt. Das macht eine Zisterne aus Beton zur besten Wahl für langfristige Regenwassernutzung.
✅ Fugenlose, monolithische Bauweise – absolut dicht und extrem stabil, weil keine Schwachstellen entstehen.
✅ Robuster Schachtdeckel – belastbar bis 1,5 t, ideal wenn du deinen Garten auch befahren möchtest.
✅ Perfekte Anschlüsse – Zu und Ablauf sowie Anschluss für deine Gartenleitung, schnell und einfach installiert.
✅ Optimal für die Gartenbewässerung – Versorge Rasen, Beete und Pflanzen zuverlässig mit kostenlosem Regenwasser.
✅ Spart bares Geld – reduziere deinen Trinkwasserverbrauch deutlich, weil du deinen Garten nachhaltig bewässerst.
✅ Langlebig mit 30 Jahren Garantie – hochwertiger C35/45 Beton sorgt für maximale Sicherheit über Jahrzehnte.
✅ Inkl. Versetzen – wird direkt in deine Baugrube eingesetzt, du hast keinen Aufwand.
✅ Kostenlose Lieferung – bequem bis zu dir auf die Baustelle.
Eine Betonzisterne ist äußerst flexibel einsetzbar und kann für verschiedene Zwecke genutzt werden:
Viele Bauherren stehen vor der Wahl zwischen einer Betonzisterne und einer Kunststoffzisterne. Hier sind einige Gründe, warum eine Zisterne aus Beton die bessere Wahl ist:
✔ Stabilität: Beton ist extrem robust und widerstandsfähig gegen Erdbewegungen, Wurzelwachstum und mechanische Belastung. Kunststoffzisternen können sich bei Druck verformen oder sogar an die Oberfläche gedrückt werden, wenn der Grundwasserspiegel steigt.
✔ Natürliche Kühlung: Beton hält das Wasser konstant kühl, wodurch die Bildung von Algen und Keimen reduziert wird.
✔ Kein zusätzliches Ballastmaterial nötig: Kunststoffzisternen müssen oft mit zusätzlichem Ballast gesichert werden, damit sie nicht „aufsteigen“. Bei einer Betonzisterne ist das durch das hohe Eigengewicht nicht nötig.
✔ Wartungsarm: Eine Zisterne aus Beton benötigt deutlich weniger Pflege und Wartung als Kunststoffmodelle.
Eine Zisterne aus Beton erfordert eine fachgerechte Installation. Doch keine Sorge – die Lieferung und das Versetzen der Zisterne sind bereits inklusive! Das bedeutet, dass du dich nicht um das Heben und Positionieren kümmern musst. Du brauchst lediglich eine vorbereitete Baugrube, die den Maßen der Zisterne entspricht.
1️⃣ Baugrube ausheben – Die Grube sollte etwas größer als die Zisterne sein, um den Einbau zu erleichtern.
2️⃣ Zisterne wird geliefert & versetzt – Die kostenlose Lieferung bringt deine Zisterne aus Beton direkt zur Baustelle, wo sie mit einem Kran in die vorbereitete Grube gesetzt wird.
3️⃣ Anschlüsse verbinden – Die vorhandenen Zu- und Abläufe ermöglichen eine einfache Integration in dein Regenwassersystem.
4️⃣ Verfüllung & Inbetriebnahme – Sobald die Zisterne sicher sitzt, wird der Bereich mit geeignetem Material verfüllt, und du kannst dein Regenwasser nutzen!
Eine Betonzisterne ist eine Investition in eine nachhaltige und ressourcenschonende Wasserversorgung. Mit 30 Jahren Garantie, kostenfreier Lieferung und professionellem Versetzen bietet die Betonzisterne 8.000l höchste Qualität und langfristigen Nutzen.
👉 Bestelle jetzt deine Zisterne aus Beton und nutze Regenwasser clever und effizient!

Deshalb erreichst du mich direkt für deine Fragen oder eine individuelle Beratung:
Toni Wiemann2024-05-28Die 5 Sterne sind fast zu wenig - man würde mehr verteilen wenn es möglich wäre. Vom ersten Kontakt und Angebotserstellung bis zur Vorbereitung und Ablauf der Lieferung, alles hat gepasst. Dazu unschlagbare Preis-Leistung und unkomplizierte Kommunikation - perfekt!
Ludwig Lämmerhofer2024-04-09Hat alles super geklappt.
Christopher G-king2024-03-21Kontakt war super. Fragen wurden schnell beantwortet, Lieferung war auch sehr und unkompliziert vom Fahrer umgesetzt. Kann ich nur empfehlen.
Hausner Tobias2024-03-19Wir sind zu 100% zufrieden. Super Service und fairer Preis.
Maximilian Meier2024-03-18Super schnelle Bearbeitung der Bestellung und sofortige Lieferung. Die beauftrage Spedition war pünktlich und hat das Setzten der Zisterne ohne Probleme durchgeführt. Ich war super zufrieden und würde sofort wieder auf www.wasserzisterne.de bestellen.
Scir occo2024-03-17Wir haben unsere Zisterne letzten Sommer erhalten. Trotz mehrerer Terminänderungen unsererseits war das Team um Herrn Hein sehr zuvorkommend. Vielen Dank.
Matthias Miethke2024-03-12Kontakt mit Händler, Terminierung, Lieferung, Fahrer inkl. Setzen der Zisterne kompetent und einwandfrei! Absolut empfehlenswert!
Tobias Müller2024-03-10Super Beratung per Telefon, Absprache und Lieferung.
Merima Hamzic2024-03-05Wir sind begeistert! Von der Betreuung bis zur Lieferung alles einwandfrei verlaufen. Besser hätte es nicht laufen können. Definitiv weiterzuempfehlen!!! Danke euch!

Deshalb erreichst du mich direkt für deine Fragen oder eine individuelle Beratung:
Seit 20 Jahren entwickle ich praxiserprobte Lösugen und gebe daher auch eine klare Handlungsempfehlug. Lass uns gemeinsam die beste Lösung für dich finden!
Du plansteineZisterne, aberfragst dich, wie der Einbaufunktioniert? In nur 90 Sekundenzeigenwirdir Schritt für Schritt, wie die Zisternesicher und effizienteingebautwird – von der Baugrube bis zum Anschluss. So bist du bestensvorbereitet!
Du willst Regenwasser nutzen, aber weißt nicht, welche Zisternengröße die richtige für dich ist? In diesem Video erfährst du, worauf es ankommt – von der Dachfläche bis zum Wasserverbrauch. So vermeidest du teure Fehlkäufe und findest die perfekte Lösung für dein Zuhause!
Regenwasser im Garten nutzen – aber wie? In diesem Video bekommst du eine klare Handlungsempfehlung zur perfekten Lösung: Welcher Filter ist der richtige? Welche Pumpe brauchst du? Welche Wasserzapfsäule ist sinnvoll? Zudem zeigen wir dir den kompletten Einbau Schritt für Schritt.
Betonzisterne 3900l ohne Zubehör
Betonzisterne 4700l ohne Zubehör
Betonzisterne 5800l ohne Zubehör
Betonzisterne 3900l ohne Zubehör
Betonzisterne 4700l ohne Zubehör
Betonzisterne 5800l ohne Zubehör
Am Forsthaus 9
87490 Haldenwang
|
Uploaded
Failed
|
![]() |